Einfamilienhaus im Bungalowstil auf ruhigem Einzelgrundstück in Berlin Rosenthal!
Objektart
Adresse
Objektdaten
Informationen
Ausstattung
Details
Dieses gepflegte Einfamilienhaus befindet sich in einer äußerst gefragten und ruhigen Wohnlage im Berliner Ortsteil Rosenthal. Die Umgebung ist geprägt von gewachsenen Einfamilienhausstrukturen, großzügigen Grundstücken und viel Grün - ein ideales Wohnumfeld für Familien, Paare oder Eigennutzer, die naturnah und dennoch stadtnah wohnen möchten.
Das Einzelgrundstück mit ca. 464 m² bietet ein hohes Maß an Privatsphäre, gute Belichtung sowie vielfältige Nutzungs- und Gestaltungsmöglichkeiten.
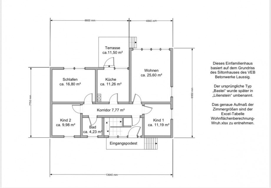
Das im Jahr 1977 errichtete Einfamilienhaus (SILTON-Haus, Typ "Lilienstein") verfügt über eine Wohnfläche von ca. 92 m² und ist teilunterkellert. Die Wohnfläche verteilt sich auf vier Zimmer, Küche, Bad und Flur. Der Wohnbereich ist schwellenfrei ausgeführt.
Der zentrale Wohn- und Essbereich überzeugt durch seine Großzügigkeit und eine angenehme, natürliche Belichtung. Große Fensterflächen schaffen eine freundliche Wohnatmosphäre und sorgen insbesondere in den Nachmittagsstunden für eine gute Sonneneinstrahlung.
Küche und Schlafzimmer liegen auf der vom Straßenraum abgewandten Seite des Hauses und bieten ein hohes Maß an Ruhe. Die Küche ist funktional geschnitten und über eine versteckte Durchreiche mit dem Wohnbereich verbunden.
Direkt an die Küche angrenzend befindet sich eine überdachte Terrasse mit Blick in den Garten. Die ca. 11,5 m² große Terrasse, belegt mit Terrazzo-Platten, bietet ausreichend Platz für einen Esstisch und lädt zum Verweilen im Freien ein.
Zwei weitere Zimmer mittlerer Größe eignen sich flexibel als Kinder-, Arbeits- oder Gästezimmer. Das Badezimmer ist zweckmäßig geschnitten und mit einer Badewanne ausgestattet.
eilunterkellerung
Der trockene, teilunterkellerte Bereich bietet praktische Nutzflächen mit Tageslicht, darunter:
o ein Werk- bzw. Hobbyraum
o ein weiterer Raum, der sich ideal als Vorrats- oder Lagerfläche eignet
Ausstattung & Technik
o Kunststofffenster mit Isolierverglasung im Wohnbereich
o Aluminium-Haustüranlage mit Seitenteilen und gutem Lichteinfall
o Parkettböden (Dielen- und Stabparkett mit Mooreiche) in nahezu allen Wohnräumen
o Gas-Heizungsanlage Baujahr 2022
o Stromanschluss 380 V
o Internetanschluss VDSL
Das Haus befindet sich in einer ruhigen, gewachsenen Wohnlage von Rosenthal, die überwiegend durch Einfamilienhäuser und wenig Durchgangsverkehr geprägt ist. Diese Struktur sorgt für ein dauerhaft ruhiges Wohnumfeld und eine hohe Lebensqualität.
Rosenthal verbindet naturnahes Wohnen mit einer sehr guten Infrastruktur. Einkaufsmöglichkeiten, Schulen, Kindertagesstätten, Ärzte sowie gastronomische Angebote sind fußläufig oder in kurzer Distanz erreichbar. Gleichzeitig befinden sich zahlreiche Grün- und Erholungsflächen in der näheren Umgebung und bieten einen hohen Freizeit- und Erholungswert.
Die Anbindung an den öffentlichen Nahverkehr sowie die gute Erreichbarkeit der Berliner Innenstadt und angrenzender Bezirke machen den Standort auch für Berufspendler attraktiv. Durch die Kombination aus ruhigem Wohnumfeld, guter Infrastruktur und begrenztem Neubauangebot zählt Rosenthal zu den wertstabilen Wohnlagen im Berliner Norden.
Diese Immobilie vereint eine ruhige und gefragte Lage, ein gut geschnittenes Einzelgrundstück, eine solide Bausubstanz sowie vielseitige Nutzungs- und Entwicklungsmöglichkeiten. Ideal für Käufer, die ein gepflegtes Einfamilienhaus mit Potenzial suchen und dieses nach eigenen Vorstellungen weiterentwickeln möchten.
Die in den Angeboten gemachten Aussagen sind Angaben der Verkäufer bzw. Behörden. Eine Haftung für die Richtigkeit kann deshalb nicht übernommen werden. Die Angebote von Baumert- Immobilien sind daher freibleibend und unverbindlich. Die Expose`s sind nur Vorinformationen ,als Rechtsgrundlage gilt allein der notariell beurkundete Kaufvertrag.
Ansprechpartner
Mobil: +49 170 7961799
info@baumert-immobilien.de
Energieausweis (Verbrauchsausweis)
168,60 kWh / (m²*a) Energieverbrauchskennwert
168,60 kWh / (m²*a) Energieverbrauchskennwert
168,60 kWh / (m²*a) Energieverbrauchskennwert
Weitere Informationen
| Wesentlicher Energieträger | Gas |
| Energieausweis Ausstelldatum | 2026-02-16 |
| Energieausweis gültig bis | 16.02.2036 |
| Energieausweis Jahrgang | ab dem 1.5.2014 |
| Energieverbrauch für Warmwasser | nicht enthalten |
| Energieausweis Werteklasse | F |
| Energieausweis Baujahr | 1977 |
| Energieausweis Gebäudeart | Wohngebäude |
| Befeuerung | Gas |
Ich bin damit einverstanden, dass mir Karten von Google angezeigt werden. Es gelten die Datenschutzbedingungen von Google (https://policies.google.com/privacy).
Ich bin einverstanden