Objektart
Adresse
Objektdaten
Informationen
Ausstattung
Details
Willkommen in Ihrem neuen Zuhause - einem charmanten Einfamilienhaus auf einem 435 m² großen Vordergrundstück, das Raum für Ihre Ideen und Ihre Familie bietet. Auf 117,5 m² Wohnfläche und 5 Zimmern erleben Sie ein behagliches Wohngefühl in einer ruhigen, dennoch hervorragend angebundenen Lage. Die durchdachte Raumaufteilung schafft sowohl gemütliche Rückzugsorte als auch großzügige Gemeinschaftsbereiche.
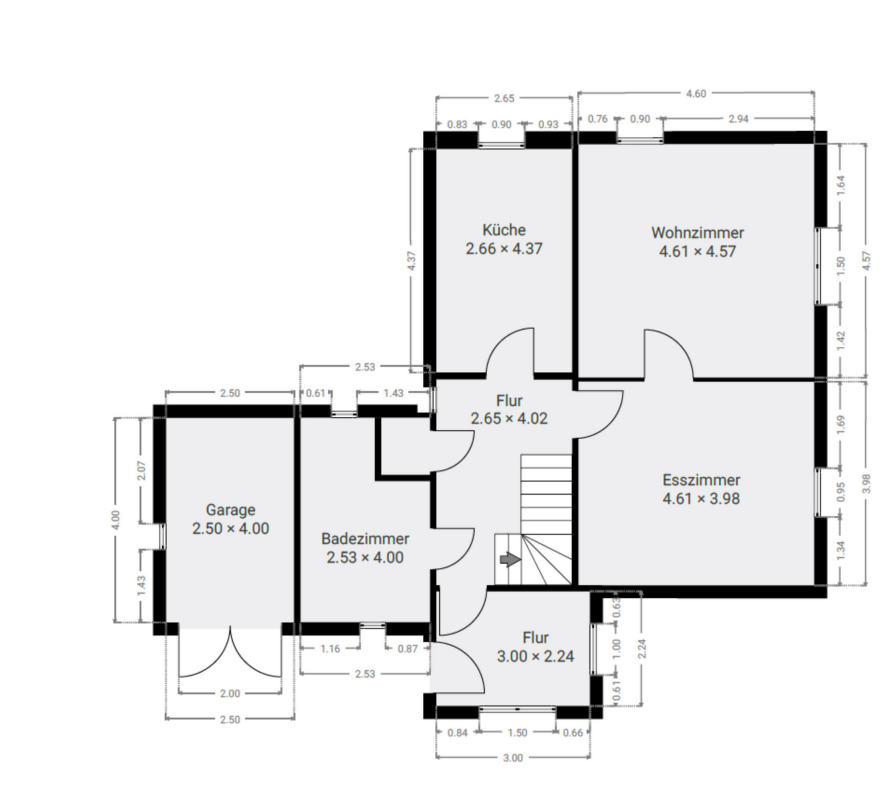
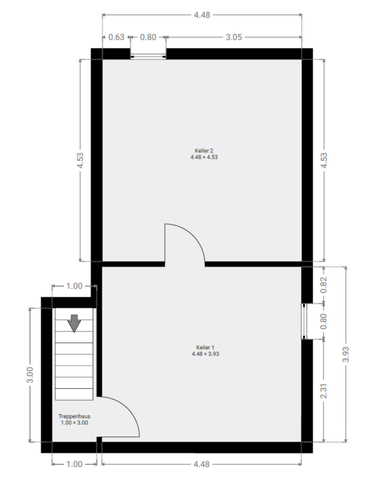
Grundriss im Überblick:
- Erdgeschoss: Helle Veranda, Küche, praktische Speisekammer/Abstellraum, Duschbad, separates WC, 2 Zimmer mit vielseitiger Nutzung
- Dachgeschoss: 3 gemütliche Zimmer - perfekt für Schlaf-, Kinder- oder Arbeitsbereiche
- Keller: 2 Räume, ideal als Hobbyraum, Stauraum oder Werkstatt
Ob auf der sonnigen Terrasse oder in der einladenden Veranda - hier finden Sie zu jeder Jahreszeit den passenden Ort zum Entspannen.
Vereinbaren Sie jetzt einen Besichtigungstermin - wir freuen uns auf Sie.
Die in den Angeboten gemachten Aussagen sind Angaben der Verkäufer bzw. Behörden. Eine Haftung für die Richtigkeit kann deshalb nicht übernommen werden. Die Angebote von Baumert- Immobilien sind daher freibleibend und unverbindlich. Die Exposés sind nur Vorinformationen ,als Rechtsgrundlage gilt allein der notariell beurkundete Kaufvertrag.
Das Haus verfügt über eine solide Grundsubstanz und eine Ausstattung, die durch Modernisierungen in den letzten Jahrzehnten ergänzt wurde.
Ausstattungsmerkmale:
- Rollläden im EG (elektrisch) und DG (manuell) zur Straßenseite
- Sonnige Terrasse und einladende Veranda
- Keller mit zwei zusätzlichen Räumen
Modernisierungsaufstellung:
- Fenster: 2-fach verglast (1990), EG zur Straße 3-fach verglast (2019)
- Elektrik: 1990er Jahre
- Heizung: Vaillant Gasheizung (2005)
Diese Kombination aus solider Bauweise und gepflegter Ausstattung bietet Ihnen eine hervorragende Grundlage, um das Haus nach Ihren eigenen Vorstellungen zu gestalten.
Die Immobilie befindet sich in Mahlsdorf-Nord, einer gefragten und gut angebundenen Wohnlage im Osten Berlins.
Verkehrsanbindung:
- Bushaltestelle und Tram-Haltestelle direkt um die Ecke
- Busverbindung zum S-Bahnhof Mahlsdorf oder S-Bahnhof Marzahn und zum U-Bahnhof Hönow
- Tramverbindung über den nahegelegenen U-Bahnhof Hellersdorf bis zum S-Bahnhof Hackescher Markt im Stadtzentrum
- Autobahnanschluss in wenigen Minuten erreichbar, über die Stadtautobahn optimale Verbindungen in alle Richtungen
Nahversorgung & Freizeit:
- In der Nähe: Sportplatz Am Rosenhag mit großem Fußballverein sowie Tennisverein
- Diverse Schulen, Kitas, Supermärkte und Tankstellen im direkten Umfeld
Diese Lage verbindet ruhiges Wohnen mit einer hervorragenden Anbindung an das Berliner Stadtzentrum und ein vielseitiges Freizeit- und Nahversorgungsangebot.
Ansprechpartner
Mobil: +49 170 7961799
info@baumert-immobilien.de
Energieausweis (Bedarfsausweis)
476,40 kWh / (m²*a) Endenergiebedarf
476,40 kWh / (m²*a) Endenergiebedarf
476,40 kWh / (m²*a) Endenergiebedarf
Weitere Informationen
| Wesentlicher Energieträger | Gas |
| Energieausweis Ausstelldatum | 2025-10-30 |
| Energieausweis gültig bis | 30.10.2035 |
| Energieausweis Jahrgang | ab dem 1.5.2014 |
| Energieausweis Werteklasse | H |
| Energieausweis Baujahr | 1926 |
| Energieausweis Gebäudeart | Wohngebäude |
| Befeuerung | Gas |
Ich bin damit einverstanden, dass mir Karten von Google angezeigt werden. Es gelten die Datenschutzbedingungen von Google (https://policies.google.com/privacy).
Ich bin einverstanden