Grün, ruhig, familienfreundlich - Wohnen auf großem Grundstück in Biesdorf
Objektart
Adresse
Objektdaten
Informationen
Ausstattung
Details
Inmitten eines gewachsenen Wohngebiets in Biesdorf-Nord liegt dieses charmante Einfamilienhaus auf einem beeindruckenden Gesamtgrundstück mit 970 Fläche. Der weitläufige Garten bildet das Herzstück dieser Immobilie - ein echtes Paradies für Familien, Naturliebhaber und Hobbygärtner, das Sie mit seiner ruhigen Lage und natürlichen Schönheit sofort in den Bann zieht.
Mit ca. 95 Wohnfläche verteilt auf Erd- und Dachgeschoss sowie Keller bietet das Haus vielfältige Möglichkeiten zur persönlichen Gestaltung. Das Raumangebot ist perfekt für Paare oder Familien geeignet, die Wert auf Privatsphäre, viel Grün und Entfaltungsspielraum legen.
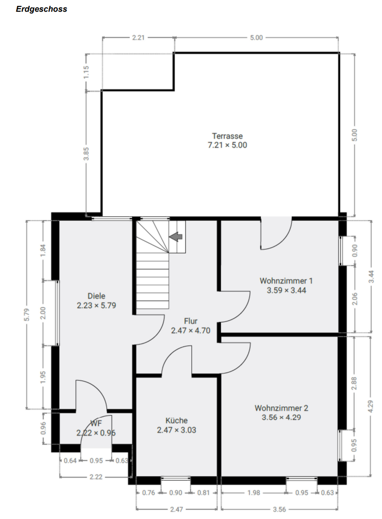
Das Erdgeschoss empfängt Sie mit einer Diele, einem Flur und einer separaten Küche. Ein Zimmer - ideal als Kinder-, Arbeits- oder Gästezimmer - sowie das lichtdurchflutete Wohnzimmer mit direktem Zugang zur großen Terrasse runden das Erdgeschoss ab. Hier erleben Sie Sommerabende im Freien mit Blick in den liebevoll gepflegten Garten - ganz ohne Nachbarn im Rücken.
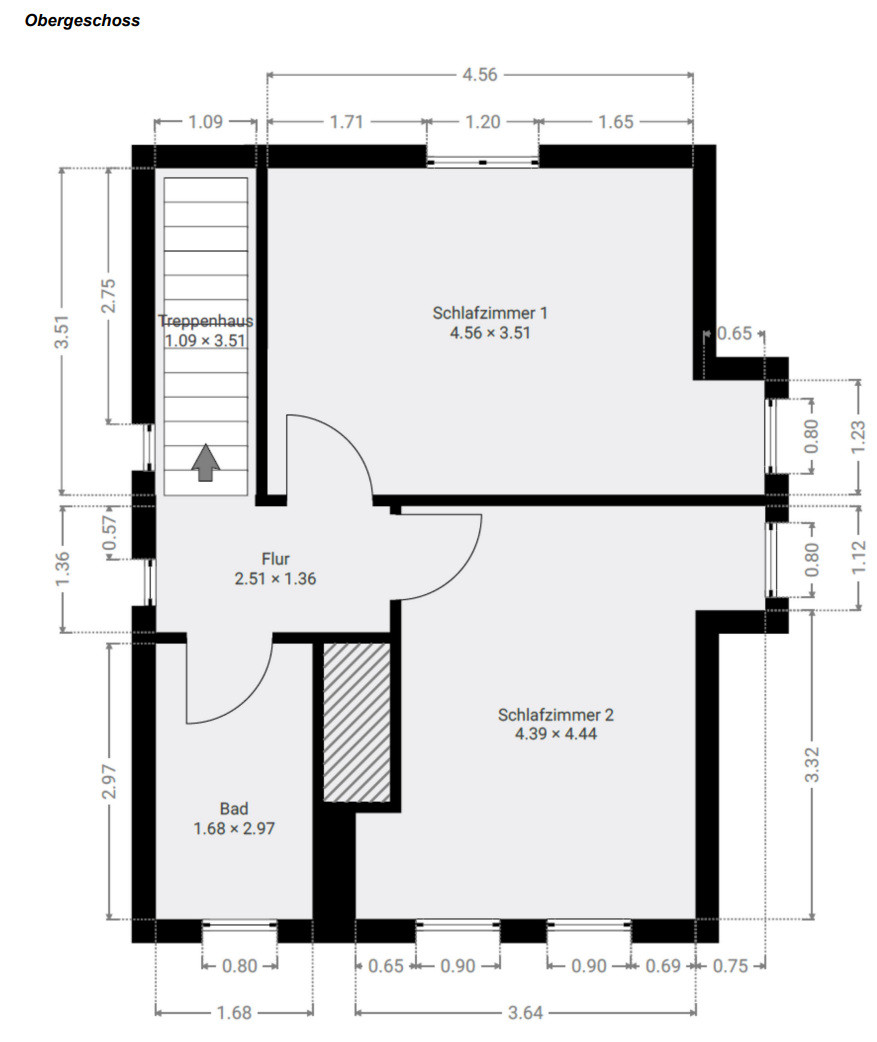
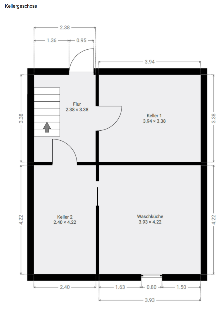
Im Dachgeschoss erwarten Sie zwei gemütliche Zimmer sowie ein modernisiertes Bad mit Dusche. Der vollunterkellerte Bereich bietet zwei weitere vielseitig nutzbare Räume sowie ein zweites Badezimmer mit Dusche, Badewanne und WC - ideal als Rückzugsort, Gäste- oder Hobbybereich. Eine Außentreppe führt direkt in den Garten.
Zudem stehen Ihnen eine Garage für Ihr Fahrzeug mit zwei weiteren Außenstellplätzen sowie einem großzügigen Nebengebäude zur Verfügung.
Dieses Einfamilienhaus ist mehr als nur ein Ort zum Wohnen - es ist ein Ort zum Ankommen, Durchatmen und Wachsen. Das große Grundstück in Kombination mit der ruhigen Lage und der vielseitigen Nutzungsmöglichkeit macht es zu einer echten Rarität in Biesdorf-Nord.
Die in den Angeboten gemachten Aussagen sind Angaben der Verkäufer bzw. Behörden. Eine Haftung für die Richtigkeit kann deshalb nicht übernommen werden. Die Angebote von Baumert- Immobilien sind daher freibleibend und unverbindlich. Die Expose`s sind nur Vorinformationen ,als Rechtsgrundlage gilt allein der notariell beurkundete Kaufvertrag.
Das Einfamilienhaus wurde über die Jahre stetig gepflegt und modernisiert, sodass Sie direkt einziehen oder nach Wunsch renovieren können:
Dach: 2010 erneuert
Fenster: 2005, mit Rollläden (EG elektrisch)
Heizungsanlage: Buderus Gasheizung aus 2005
Elektrik: 1990er Jahre
Badezimmer OG: modernisiert 2017
Badezimmer im Keller: aus dem Jahr 2000
Wasserleitungen: 1980er Jahre
Abwasser: vorhanden
Die durchdachte Raumaufteilung, die große Terrasse sowie der gepflegte Gartenbereich runden das Wohnkonzept ab und machen dieses Haus zu einer idealen Wahl für alle, die ein Zuhause mit Charakter suchen.
Die Immobilie befindet sich in einer ruhigen Seitenstraße in begehrter Wohnlage von Biesdorf-Nord - einem der grünsten Ortsteile im Berliner Osten. Hier wohnen Sie ruhig und familienfreundlich, und dennoch hervorragend angebunden:
Die nächste Bushaltestelle ist nur 3 Gehminuten entfernt
Schnelle Erreichbarkeit der S-Bahn (S7 & S5)
Optimale Anbindung an die B1/B5 für den schnellen Weg in die Berliner Innenstadt
In direkter Umgebung finden Sie alles für den Alltag: Kitas, Schulen, Ärzte, Einkaufsmöglichkeiten - darunter das Eastgate Berlin, eines der größten Shoppingcenter Berlins.
Ein besonderes Highlight ist die Nähe zu den Gärten der Welt - einem der schönsten Landschaftsparks Berlins mit Themengärten, Seilbahn und zahlreichen Veranstaltungen. Auch der Biesdorfer Schlosspark lädt zum Spazieren, Joggen und Verweilen ein.
Ansprechpartner
Mobil: +49 170 7961799
info@baumert-immobilien.de
Energieausweis (Verbrauchsausweis)
218,60 kWh / (m²*a) Energieverbrauchskennwert
218,60 kWh / (m²*a) Energieverbrauchskennwert
218,60 kWh / (m²*a) Energieverbrauchskennwert
Weitere Informationen
| Wesentlicher Energieträger | Gas |
| Energieausweis Ausstelldatum | 2025-06-10 |
| Energieausweis gültig bis | 10.06.2035 |
| Energieausweis Jahrgang | ab dem 1.5.2014 |
| Energieausweis Werteklasse | G |
| Energieausweis Baujahr | 1936 |
| Energieausweis Gebäudeart | Wohngebäude |
| Befeuerung | Gas |
Ich bin damit einverstanden, dass mir Karten von Google angezeigt werden. Es gelten die Datenschutzbedingungen von Google (https://policies.google.com/privacy).
Ich bin einverstanden