Objektart
Adresse
Objektdaten
Informationen
Ausstattung
Details
Dieses gepflegte Mehrfamilienhaus in ruhiger und gefragter Lage von Kaulsdorf-Süd überzeugt durch seine solide Gebäudestruktur sowie drei gut geschnittene Wohneinheiten mit attraktiven Ausstattungsmerkmalen.
Das Haus umfasst insgesamt drei Wohneinheiten (Erdgeschoss, Obergeschoss und Dachgeschoss) und bietet damit ein ruhiges, nahezu familiäres Wohnumfeld. Die Kombination aus unterschiedlichen Wohnungsgrößen macht die Immobilie sowohl für Eigennutzer mit Teilvermietung als auch für Kapitalanleger besonders interessant.
Die Erdgeschoss- und Obergeschosswohnung überzeugen durch ähnliche, großzügige Raumkonzepte, während die Dachgeschosswohnung durch ihren separaten Zugang und zusätzlichen Souterrainbereich einen besonderen Mehrwert bietet.
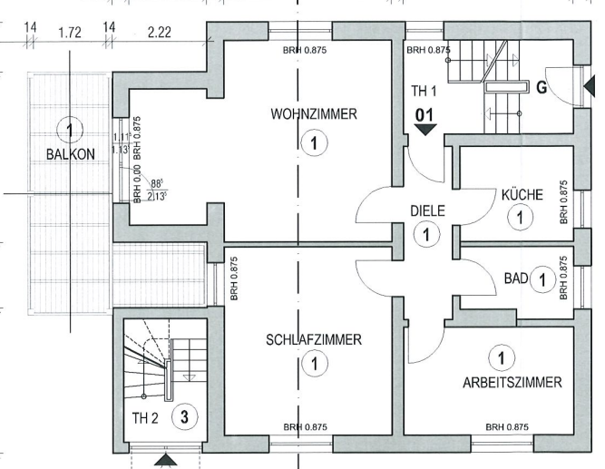
Erdgeschosswohnung: ca. 74,87 m² Wohnfläche
- Die 3-Zimmer-Wohnung bietet eine großzügige Raumaufteilung mit einem hellen Wohnzimmer als zentralem Mittelpunkt. Ein Schlafzimmer sowie ein weiteres Zimmer ermöglichen flexible Nutzungsmöglichkeiten, beispielsweise als Arbeits- oder Gästezimmer.
- Ein besonderes Highlight ist der große, teilüberdachte Balkon (ca. 15,52 m²), der zu entspannten Stunden im Freien einlädt.
- Zusätzlichen Stauraum bietet ein separater Kellerraum (ca. 6,12 m²).
Obergeschosswohnung: ca. 75,38 m² Wohnfläche
- Die 2-Zimmer-Wohnung im Obergeschoss überzeugt durch großzügige Räume und ein komfortables Wohngefühl. Das helle Wohnzimmer bietet Zugang zum großen Balkon mit Weitblick (ca. 15,52 m²).
- Ein geräumiges Schlafzimmer, eine separate Küche sowie ein großzügiges Badezimmer unterstreichen die Qualität dieser Einheit.
- Ein großer Kellerraum (ca. 12,32 m²) ergänzt das Angebot.
Dachgeschosswohnung: ca. 62,34 m² Wohnfläche inkl. Souterrain
- Die Dachgeschosswohnung bietet ein besonders privates Wohngefühl durch einen separaten Zugang und wurde im Jahr 2003 ausgebaut.
- Das Wohnzimmer mit Balkonzugang und schönem Ausblick bildet das Herzstück der Wohnung. Der Balkon wurde im Jahr 2025 erneuert.
- Ein besonderes Highlight ist der zur Wohnung gehörende Souterrainbereich, der zusätzliche Nutzflächen schafft, darunter ein weiteres Badezimmer, eine Garderobe sowie ein Hobby- bzw. Abstellraum.
- Hochwertige Tischler-Innentüren im Dachgeschoss unterstreichen den gepflegten Charakter.
Überzeugen Sie sich selbst - vereinbaren Sie noch heute einen Besichtigungstermin!
Die in den Angeboten gemachten Aussagen sind Angaben der Verkäufer bzw. Behörden. Eine Haftung für die Richtigkeit kann deshalb nicht übernommen werden. Die Angebote von Baumert- Immobilien sind daher freibleibend und unverbindlich. Die Expose`s sind nur Vorinformationen ,als Rechtsgrundlage gilt allein der notariell beurkundete Kaufvertrag.
Das Mehrfamilienhaus überzeugt durch eine solide Bauweise, kontinuierliche Modernisierungen sowie eine insgesamt gepflegte Ausstattung, sowohl auf Gebäudeebene als auch innerhalb der einzelnen Wohneinheiten.
Highlights der Wohnungen:
- Zwei großzügige, teilüberdachte Balkone (je ca. 15,52 m²) in Erd- und Obergeschoss
- Dachgeschosswohnung mit eigenem Zugang und separatem Treppenhaus (Haus-im-Haus-Charakter)
- Balkon im Dachgeschoss (ca. 6 m², 2025 erneuert)
- Helle, gut geschnittene Grundrisse in allen Einheiten
Ausstattung & Modernisierungen der Wohneinheiten
Erdgeschoss & Obergeschoss:
1985: Hauseingangstür aus massivem Eichenholz
2005: Modernisierung der Badezimmer
2008: Anbau der Balkone
2010 (EG): Erneuerung der Elektrik
2024 (OG): Erneuerung der Elektrik
2014 (EG): Einbau Einbauküche
2025 (OG): Einbau Einbauküche
2018 (OG): Installation einer Markise (elektrisch)
2020 (OG): Einbau einer PLAMECO-Decke im Badezimmer (langlebig, feuchtigkeitsbeständig)
2026 (EG): Malerarbeiten in allen Räumen sowie Erneuerung der Silikonfugen in den Bädern
Zusätzliche Flächen:
Kellerräume: ca. 6,12 m² (EG) und ca. 12,32 m² (OG)
Dachgeschosswohnung
2003: Ausbau der Wohnung inkl. Dachdeckung und separatem Treppenhaus (eigener Zugang)
2008: Anbau des Balkons
2025: Erneuerung der Balkonbeplankung
Hochwertige, massiv gefertigte Tischler-Innentüren im gesamten Wohnbereich
Souterrainbereich (zur DG-Wohnung gehörend):
Separater, exklusiv zugeordneter Bereich (keine Verbindung zum allgemeinen Keller)
Zusätzliche Nutzflächen mit:
Badezimmer
Garderobenbereich
Hobby- bzw. Abstellraum
Modernisierungen am Gebäude
Das Gebäude wurde fortlaufend instand gehalten und technisch modernisiert:
ca. 1995: Erneuerung der Fenster (Isolierglas, Kunststoffrahmen; Keller mit Sicherheitsglas)
ca. 2000: Strangsanierung und vollständige Erneuerung der Elektroleitungen
2000-2003: Aufschachtung und Außenabdichtung des Kellers (Bitumen), Klinkersockel überarbeitet
2003: Dachgeschossausbau inkl. Dachdeckung und separatem Treppenhaus
2011: Einbau einer modernen Vaillant-Brennwerttherme mit Schichtenspeicher
2017: Errichtung von Klinkerpfeilern an der Toranlage, neue Edelstahl-Briefkastenanlage
2018: Neupflasterung der Einfahrt
Die Immobilie bietet eine sehr solide technische Basis, kombiniert mit kontinuierlichen Modernisierungen und attraktiven Ausstattungsdetails in den einzelnen Wohnungen. Besonders hervorzuheben sind die großzügigen Balkone, der separate Zugang zur Dachgeschosswohnung sowie die zusätzlichen Nutzflächen im Souterrain.
Die Wohnung befindet sich in einer äußerst ruhigen und grünen Wohnlage im beliebten Ortsteil Kaulsdorf-Süd. Die Umgebung ist geprägt von einer angenehmen Nachbarschaft und viel Natur, ideal für alle, die Erholung und urbanes Leben miteinander verbinden möchten.
In unmittelbarer Nähe liegt ein weitläufiges Waldgebiet, das zu ausgedehnten Spaziergängen, Joggingrunden oder entspannten Stunden im Grünen einlädt. Auch die idyllischen Kaulsdorfer Seen sind schnell erreichbar und bieten einen hohen Freizeit- und Erholungswert.
Die Verkehrsanbindung ist gut ausgebaut: Eine nahegelegene Busverbindung bringt Sie bequem über den Elsterwerdaer Platz zu den S- und U-Bahn-Anschlüssen in Berlin-Lichtenberg oder alternativ in Richtung Waldesruh. Somit ist sowohl das Berliner Stadtzentrum als auch das Umland gut erreichbar. Perspektivisch profitiert der Standort zusätzlich von der geplanten Inbetriebnahme des Regionalbahnhofs Köpenick (voraussichtlich Ende 2027), der die Anbindung und Attraktivität im Südosten Berlins weiter erhöht.
Für den täglichen Bedarf stehen Ihnen zahlreiche Einkaufsmöglichkeiten in der Umgebung zur Verfügung, darunter Edeka, Aldi, Netto und Lidl. Ergänzt wird die Infrastruktur durch eine Apotheke, mehrere Kindertagesstätten sowie die Ulmen-Grundschule, was die Lage besonders familienfreundlich macht.
Insgesamt überzeugt die Lage durch ihre Kombination aus Ruhe, Naturverbundenheit und einer zugleich gut entwickelten Infrastruktur.
Ansprechpartner
Mobil: +49 170 7961799
info@baumert-immobilien.de
Energieausweis (Verbrauchsausweis)
82,90 kWh / (m²*a) Energieverbrauchskennwert
82,90 kWh / (m²*a) Energieverbrauchskennwert
82,90 kWh / (m²*a) Energieverbrauchskennwert
Weitere Informationen
| Wesentlicher Energieträger | Gas |
| Energieausweis Ausstelldatum | 2026-01-29 |
| Energieausweis gültig bis | 29.01.2036 |
| Energieausweis Jahrgang | ab dem 1.5.2014 |
| Energieverbrauch für Warmwasser | nicht enthalten |
| Energieausweis Werteklasse | C |
| Energieausweis Baujahr | 1932 |
| Energieausweis Gebäudeart | Wohngebäude |
| Befeuerung | Gas |
Ich bin damit einverstanden, dass mir Karten von Google angezeigt werden. Es gelten die Datenschutzbedingungen von Google (https://policies.google.com/privacy).
Ich bin einverstanden