Modernes Wohnjuwel 2026: Erstbezug nach hocheffizienter Kernsanierung in Kaulsdorf-Süd
Objektart
Adresse
Objektdaten
Informationen
Ausstattung
Details
Willkommen in Ihrem neuen Zuhause, das Ästhetik und modernste Technik perfekt vereint. Diese Doppelhaushälfte wurde im Jahr 2026 fertiggestellt und nach den neuesten Standards der Energieeffizienz umfassend kernsaniert. Hier erwerben Sie ein Objekt, das technisch auf dem Stand eines Neubaus ist und Ihnen langfristige Planungssicherheit bietet.
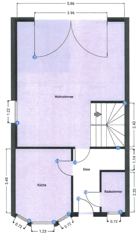
Auf ca. 100 m² reiner Wohnfläche im Erd- und Obergeschoss erwartet Sie ein durchdachtes Raumkonzept. Das Herzstück ist das nach Süden ausgerichtete, lichtdurchflutete Wohnzimmer, das den ganzen Tag über von natürlichem Licht profitiert. Die Küche auf der Nordseite ist durch einen modernen Open-View-Tresen (Küchen-Bar) optisch mit dem Wohnbereich verbunden, ideal für eine kommunikative Atmosphäre.
Die Highlights im Überblick:
- Energie & Technik: Modernste Wärmepumpe, dreifachverglaste Fenster in allen Räumen und eine flächendeckende Fußbodenheizung (EG/OG).
- Zukunftssicher: Ein vollständiger Sanierungsfahrplan liegt vor. Das Dach bietet optimale Flächen für eine Solaranlage; weitere Einzelmaßnahmen sind explizit förderfähig.
- Wellness-Faktor: Das Obergeschoss überzeugt mit einem Master-Bad inklusive Badewanne und bodentiefer Dusche. Das Gäste-WC im Erdgeschoss wurde zusätzlich mit einer bodentiefen Dusche ausgestattet, ideal für Gäste oder den schnellen Start in den Tag.
- Raumwunder: Der charmante Spitzboden ist bereits ausgebaut und über eine feste Treppe direkt aus einem der Zimmer im Obergeschoss zugänglich. Er bietet die perfekte, ruhige Rückzugsmöglichkeit als Hobbybereich oder gemütliche Bibliothek.
- Grundstück & Außenanlage: Ein privater Stellplatz befindet sich direkt auf dem Grundstück. Der Garten bietet zudem ausreichend Platz für die Realisierung eines eigenen Pools.
Aufteilung:
Erdgeschoss: Flur, Gäste-WC mit bodentiefer Dusche, Nord-Küche mit Open-View-Tresen, großes Süd-Wohnzimmer mit Zugang zur Terrasse.
Obergeschoss: Drei flexibel nutzbare Zimmer, Hauptbad mit Wanne und Dusche.
Nutzflächen: Zusätzliche Nutzflächen eröffnen sich im Keller, der auf ca. 58 m² mit massivem Stauraum ideale Bedingungen für Lagerung oder auch die Nutzung als Hobbyraum bietet. Im Keller befindet sich zudem ein Waschmaschinenanschluss. Der ausgebaute Spitzboden erweitert das Platzangebot im Obergeschoss spürbar und schafft zusätzlichen Raum für individuelle Nutzungsmöglichkeiten.
Warum diese Immobilie?
Dieses Haus ist die Antwort auf steigende Energiekosten. Durch die energetische Sanierung 2026 und die vorbereitete Solar-Eignung wohnen Sie hier nahezu autark und auf modernstem Niveau. Während der Keller und der Spitzboden aufgrund der Deckenhöhen formal als Nutzfläche zählen, bieten sie wertvollen Zusatzraum für all die Dinge, die das Leben schöner machen.
Die in den Angeboten gemachten Aussagen sind Angaben der Verkäufer bzw. Behörden. Eine Haftung für die Richtigkeit kann deshalb nicht übernommen werden. Die Angebote von Baumert- Immobilien sind daher freibleibend und unverbindlich. Die Expose`s sind nur Vorinformationen ,als Rechtsgrundlage gilt allein der notariell beurkundete Kaufvertrag.
Im Zuge der umfassenden Modernisierung im Jahr 2025/2026 wurde die Immobilie technisch und optisch auf einen aktuellen Stand gebracht. Die Ausstattung überzeugt durch eine gelungene Kombination aus Komfort und Energieeffizienz.
Zu den durchgeführten Maßnahmen zählen:
Installation einer modernen Wärmepumpe
Neue Fußbodenheizung
Erneuerung der Elektrik
Sanierung der Bäder
Fenster: Hochwertige Dreifachverglasung für optimalen Schall- und Wärmeschutz
Dachflächenfenster haben Energie-Plus Verglasung inkl. Rollläden, elektrisch und solarbetrieben
Dachsanierung
Keller-Innendämmung
Neue Innentüren sowie eine neue Außentür
Neue Bodenbeläge & frisch gestrichene Wände
Die Fußbodenheizung sorgt in allen Wohnbereichen für ein angenehmes Raumklima und unterstreicht den gehobenen Wohnkomfort.
Lage: Ruhe trifft perfekte Anbindung
Die Immobilie befindet sich in einer der begehrtesten und ruhigsten Wohngegenden von Kaulsdorf-Süd, geprägt durch gepflegte Ein- und Doppelhaushälften.
Trotz der idyllischen Lage ist die Anbindung an die Berliner City exzellent:
ÖPNV:
Mit dem Bus erreichen Sie die Linien U5, S5 und S3 in ca. 15 Minuten.
Freizeit:
Die Kaulsdorfer Seen sind nur einen kurzen Spaziergang entfernt und bieten einen extrem hohen Erholungswert direkt vor der Haustür.
Einkaufsmöglichkeiten:
Zahlreiche Supermärkte sowie weitere Geschäfte des täglichen Bedarfs befinden sich in unmittelbarer Umgebung und sind in wenigen Minuten erreichbar.
Bildung & Betreuung:
Familien profitieren von einer hervorragenden Infrastruktur: Die Ulmen-Grundschule befindet sich in kurzer Distanz, ebenso wie mehrere Kitas in direkter Umgebung.
Gesundheit & Versorgung:
Ärzte verschiedener Fachrichtungen, Physiotherapiepraxen sowie weitere medizinische Einrichtungen sind fußläufig erreichbar und gewährleisten eine optimale Versorgung.
Gastronomie:
Auch kulinarisch bietet die Umgebung eine angenehme Vielfalt: Mehrere Restaurants mit asiatischer, deutscher und griechischer Küche befinden sich in der Nähe und laden zu abwechslungsreichen Restaurantbesuchen ein.
Ansprechpartner
Mobil: +49 170 7961799
info@baumert-immobilien.de
Ich bin damit einverstanden, dass mir Karten von Google angezeigt werden. Es gelten die Datenschutzbedingungen von Google (https://policies.google.com/privacy).
Ich bin einverstanden