Neuwertiges Stadthaus in Biesdorf-Süd: modern, energieeffizient & familienfreundlich
Objektart
Adresse
Objektdaten
Informationen
Ausstattung
Details
Dieses moderne Stadthaus aus dem Baujahr 2017 präsentiert sich in einem äußerst gepflegten Zustand und überzeugt durch eine durchdachte Raumaufteilung sowie ein angenehmes Wohnambiente. Auf rund 150 m² Wohnfläche erwarten Sie fünf großzügige Zimmer, die vielfältige Möglichkeiten für individuelles Wohnen bieten.
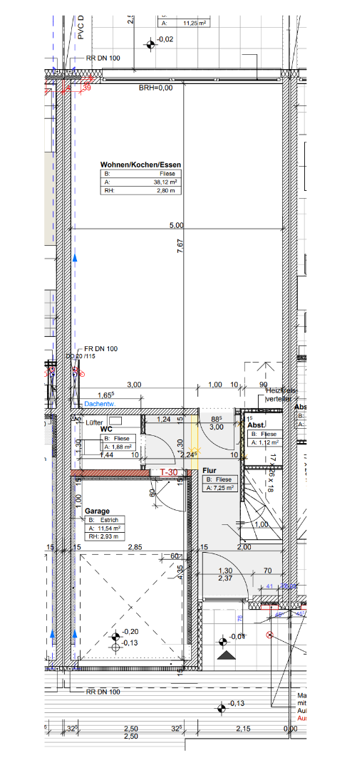
Bereits beim Betreten des Reihenmittelhauses zeigt sich die klare Struktur des Grundrisses: Im Erdgeschoss (Ebene 1) befinden sich die integrierte Garage (ca. 15 m² Nutzfläche), eine einladende Diele mit Treppeneinbauschrank sowie ein modernes Gäste-WC.
Herzstück des Hauses ist der offen gestaltete Wohn- und Küchenbereich, der durch seine Großzügigkeit und Helligkeit besticht und direkten Zugang zur Terrasse und in den liebevoll angelegten Garten bietet.
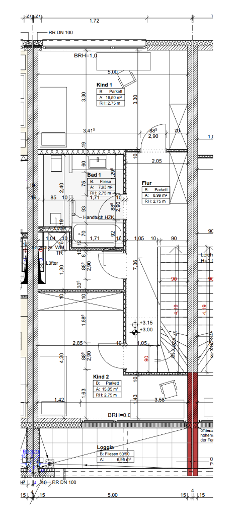
Das Obergeschoss (Ebene2) bietet einen Flur, zwei großzügig geschnittene Zimmer sowie ein modernes Badezimmer mit ebenerdiger Dusche und Badewanne. Ein besonderes Highlight ist die ca. 7 m² große Loggia, die von einem der Zimmer aus zugänglich ist und zusätzlichen Freiraum bietet.
Im Dachgeschoss (Ebene 3) erwarten Sie zwei weitere Zimmer mit jeweils einer Dachterrasse (ca. 12 m² und 9 m²), ein weiteres Badezimmer mit ebenerdiger Dusche sowie ein Flur. Diese Ebene eignet sich ideal als Rückzugsort für Familienmitglieder oder als Homeoffice-Bereich mit besonderem Ausblick.
Insgesamt stehen Ihnen damit ein Gäste-WC im Erdgeschoss sowie zwei vollwertige Badezimmer in den oberen Etagen zur Verfügung - ideal für Familien oder Gäste.
Überzeugen Sie sich selbst - vereinbaren Sie noch heute einen Besichtigungstermin!
Die in den Angeboten gemachten Aussagen sind Angaben der Verkäufer bzw. Behörden. Eine Haftung für die Richtigkeit kann deshalb nicht übernommen werden. Die Angebote von Baumert-Immobilien sind daher freibleibend und unverbindlich. Die Exposés sind nur Vorinformationen. Als Rechtsgrundlage gilt allein der notariell beurkundete Kaufvertrag.
Die Ausstattung dieser Immobilie entspricht höchsten modernen Ansprüchen an Komfort, Energieeffizienz und Wohnqualität. Die hervorragende Energieeffizienzklasse A+, in Kombination mit einer modernen Wärmepumpe sorgt für nachhaltiges und kosteneffizientes Wohnen. Die im gesamten Haus verlegte Fußbodenheizung garantiert dabei ein angenehmes Raumklima und eine gleichmäßige Wärmeverteilung - ganz ohne störende Heizkörper.
Hochwertiges Eichenparkett in den Schlafräumen und weiteren Wohnbereichen unterstreicht den gehobenen Ausstattungsstandard, während Küche und Wohnzimmer mit modernen Fliesen versehen sind.
Für ein durchgehend helles und freundliches Wohnambiente sorgen großflächige Fenster in allen Räumen, die viel Tageslicht hereinlassen und ein offenes Raumgefühl schaffen.
Individuell gefertigte Schreiner-Innentüren mit Oberlichtern unterstreichen den besonderen Ausstattungsanspruch und verstärken zusätzlich die helle, offene Wirkung der Räume.
Die Nolte-Einbauküche fügt sich harmonisch in den offenen Wohnbereich ein und bietet optimale Voraussetzungen für kulinarische Erlebnisse und gesellige Abende. Auch die sanitäre Ausstattung überzeugt auf ganzer Linie: Im Erdgeschoss steht ein funktionales Gäste-WC zur Verfügung. Das Obergeschoss verfügt über ein stilvolles Badezimmer mit ebenerdiger Dusche und Badewanne, ideal für Familien. Im Dachgeschoss ergänzt ein weiteres modernes Badezimmer mit ebenerdiger Dusche das Raumangebot.
Die verschiedenen Außenflächen machen diese Immobilie besonders attraktiv: Neben der gemütlichen Gartenterrasse stehen Ihnen eine Loggia sowie zwei großzügige Dachterrassen zur Verfügung - ideale Orte, um Zeit im Freien zu genießen. Abgerundet wird die hochwertige Ausstattung durch die integrierte Garage mit direktem Zugang zum Haus, der zusätzliche Komfort und Sicherheit bietet.
Insgesamt präsentiert sich die Immobilie als modernes, energieeffizientes Zuhause mit durchdachter Ausstattung und einem hohen Maß an Lebensqualität.
Nahe den Schmetterlingswiesen und der Wuhle befindet sich dieses Stadthaus in einer äußerst gefragten Wohnlage im südlichen Teil von Biesdorf - einer der grünsten und zugleich angenehm ruhigen Wohngegenden im Osten Berlins. Die Umgebung ist geprägt von gepflegten Einfamilienhäusern, kleinen Wohnanlagen und viel Natur, was ein entspanntes und familienfreundliches Wohnumfeld schafft. Hier genießen Sie eine ideale Kombination aus urbaner Nähe und naturnahem Wohnen.
Die unmittelbare Umgebung überzeugt durch ihre gewachsene Infrastruktur und eine hohe Lebensqualität. Einkaufsmöglichkeiten für den täglichen Bedarf, Schulen, Kitas sowie medizinische Einrichtungen sind in kurzer Zeit erreichbar. Besonders hervorzuheben ist das nahegelegene Biesdorf Center, das mit einer Vielzahl an Geschäften, Supermärkten und Dienstleistern eine komfortable Nahversorgung garantiert.
Auch die Verkehrsanbindung ist hervorragend: Eine Bushaltestelle befindet sich nur wenige Schritte entfernt und bringt Sie in etwa zwei Minuten bequem zum U-Bahnhof Elsterwerdaer Platz, der auch in ca. 10 Minuten fußläufig erreichbar ist. Von hier aus besteht eine direkte Anbindung an die Berliner Innenstadt, sodass Sie sowohl beruflich als auch privat flexibel und mobil sind.
Gleichzeitig profitieren Sie von einer schnellen Erreichbarkeit des Berliner Umlands, was insbesondere Pendlern und Naturliebhabern zugutekommt.
Auch mit dem Auto ist die Lage ideal: In wenigen Minuten gelangt man zur Ost-West-Verbindungstraße B1/B5 und hat so optimale Anbindung an die City und den Autobahnring (jeweils ca. 7 km entfernt).
Darüber hinaus lädt die Umgebung mit zahlreichen Grünflächen, Parks und Naherholungsgebieten zu vielfältigen Freizeitaktivitäten im Freien ein. Spaziergänge, Fahrradtouren oder entspannte Stunden im Grünen lassen sich hier direkt vor der Haustür genießen. Die ruhigen Straßen und die angenehme Nachbarschaft unterstreichen den besonderen Charme dieser Lage.
Insgesamt bietet diese Wohnlage eine perfekte Balance zwischen Ruhe, Natur und exzellenter Anbindung, ein idealer Lebensmittelpunkt für alle, die ein entspanntes Wohnen mit den Vorzügen der Hauptstadt verbinden möchten.
Ansprechpartner
Mobil: +49 170 7961799
info@baumert-immobilien.de
Energieausweis (Bedarfsausweis)
13,90 kWh / (m²*a) Endenergiebedarf
13,90 kWh / (m²*a) Endenergiebedarf
13,90 kWh / (m²*a) Endenergiebedarf
Weitere Informationen
| Wesentlicher Energieträger | Wärmepumpe |
| Energieausweis Ausstelldatum | 2016-10-04 |
| Energieausweis gültig bis | 03.10.2026 |
| Energieausweis Jahrgang | ab dem 1.5.2014 |
| Energieausweis Werteklasse | A+ |
| Energieausweis Baujahr | 2017 |
| Energieausweis Gebäudeart | Wohngebäude |
| Heizung | Fußbodenheizung |
| Befeuerung | Luft-/Wasser-Wärmepumpe |
Ich bin damit einverstanden, dass mir Karten von Google angezeigt werden. Es gelten die Datenschutzbedingungen von Google (https://policies.google.com/privacy).
Ich bin einverstanden