Objektart
Adresse
Objektdaten
Informationen
Ausstattung
Details
Willkommen in Ihrem neuen Rückzugsort - einer lichtdurchfluteten 1,5-Zimmer-Wohnung im Dachgeschoss eines gepflegten Mehrfamilienhauses aus dem Jahr 1996, direkt an der Dahme gelegen. Diese charmante Wohnung verbindet Großstadtleben mit idyllischer Wasserlage und bietet ein einmaliges Wohngefühl.
Besonderer Komfort: Das Haus verfügt über einen Aufzug, der Sie bequem bis ins Dachgeschoss bringt - ideal für jedes Alter und jede Lebenssituation. Die Wohnanlage mit Grünflächen wird durch einen Objekthauswart gepflegt und in der benachbarten Tiefgarage gibt es einen Fahrradabstellplatz - so genießen Sie zusätzliche Annehmlichkeiten direkt vor Ort.
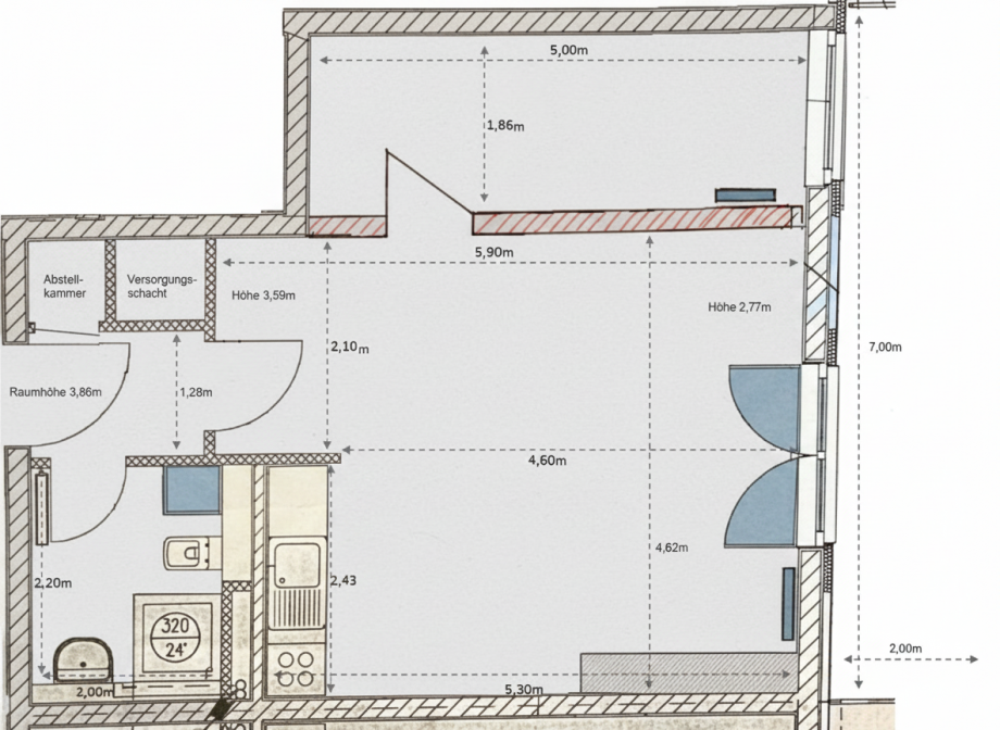
Mit ca. 26,67 m² bietet das großzügige Wohnzimmer viel Platz für gemütliche Stunden - und führt ebenso wie das Schlafzimmer direkt auf die große Westterrasse (ca. 8,6 m²). Hier können Sie den Sonnenuntergang über dem Wasser genießen und den Tag entspannt ausklingen lassen.
Dank der Westausrichtung der Terrasse genießen Sie besonders in den Sommermonaten sonnenreiche Nachmittage und stimmungsvolle Abende mit Blick auf die Dahme - ein echtes Highlight der Wohnung.
Die moderne Einbauküche ist offen in den Wohnbereich integriert und bietet funktionalen Komfort für den Alltag. Das Badezimmer ist mit einer Dusche ausgestattet und gefliest - kompakt, gepflegt und funktional. Ein kleiner Abstellraum sowie ein praktischer Eingangsbereich ergänzen die Wohnung sinnvoll.
Raumaufteilung im Überblick:
Flur: 2,08 m²
Badezimmer (mit Dusche): 4,91 m²
Abstellraum: 0,61 m²
Wohnzimmer: 26,67 m²
Schlafzimmer: 9,56 m²
Terrasse: 8,6 m²
Eine Wohnung für alle, die das Wasser lieben, die Ruhe suchen - aber auf eine gute Anbindung und urbanes Flair nicht verzichten möchten. Ein echtes Stück Lebensqualität in Köpenick!
Die in den Angeboten gemachten Aussagen sind Angaben der Verkäufer bzw. Behörden. Eine Haftung für die Richtigkeit kann deshalb nicht übernommen werden. Die Angebote von Baumert- Immobilien sind daher freibleibend und unverbindlich. Die Expose`s sind nur Vorinformationen ,als Rechtsgrundlage gilt allein der notariell beurkundete Kaufvertrag.
Die Wohnung befindet sich in traumhafter Lage direkt an der Dahme, entlang der ruhigen und grünen Wendenschloßstraße im beliebten Berliner Bezirk Köpenick. Hier wohnen Sie in einer der schönsten Wasserlagen Berlins - umgeben von Natur und dennoch gut angebunden.
Nur wenige Schritte entfernt finden Sie alles, was Sie für den täglichen Bedarf benötigen: Der nächste EDEKA-Supermarkt, die nächste Apotheke sowie der nächste Hausarzt sind direkt um die Ecke, ebenso wie eine Tramhaltestelle mit direkter Verbindung in die Köpenicker Altstadt und darüber hinaus.
Die Wendenschloßstraße und ihre Umgebung sind geprägt von viel Grün, gepflegten Altbauten, kleinen Cafés und einer entspannten Atmosphäre. Spaziergänge entlang des Ufers, Bootsfahrten oder ein Nachmittag im nahegelegenen Schlosspark Köpenick machen das Leben hier besonders lebenswert. Die Nähe zu Seen, Wäldern und der Altstadt sorgt für ein hohes Maß an Freizeit- und Erholungsqualität.
Ansprechpartner
Mobil: +49 170 7961799
info@baumert-immobilien.de
Energieausweis (Verbrauchsausweis)
68,20 kWh / (m²*a) Energieverbrauchskennwert
68,20 kWh / (m²*a) Energieverbrauchskennwert
68,20 kWh / (m²*a) Energieverbrauchskennwert
Weitere Informationen
| Wesentlicher Energieträger | Fernwärme |
| Energieausweis Ausstelldatum | 2018-09-23 |
| Energieausweis gültig bis | 22.09.2028 |
| Energieausweis Jahrgang | ab dem 1.5.2014 |
| Energieausweis Werteklasse | B |
| Energieausweis Baujahr | 1996 |
| Energieausweis Gebäudeart | Wohngebäude |
| Heizung | Fernheizung |
| Befeuerung | Fernwärme |
Ich bin damit einverstanden, dass mir Karten von Google angezeigt werden. Es gelten die Datenschutzbedingungen von Google (https://policies.google.com/privacy).
Ich bin einverstanden