Zweifamilienhaus mit Balkon & Terrasse auf vorderem Grundstück in Biesdorf
Objektart
Adresse
Objektdaten
Informationen
Ausstattung
Details
Dieses charmante Zweifamilienhaus aus dem Jahr 1932 befindet sich auf einem vorderen Grundstück von 407 m² und besticht durch seine massive Bauweise sowie den klaren Grundriss. Auf zwei Etagen plus Dachgeschoss verteilen sich zwei separate Wohneinheiten, die vielfältige Nutzungsmöglichkeiten bieten - ideal für Familien, Mehrgenerationenwohnen oder als Kombination aus Wohnen und Vermieten.
Das Obergeschoss wurde bereits weitgehend modernisiert und überzeugt durch eine helle, freundliche Wohnatmosphäre. Erdgeschoss und Kellerräume befinden sich noch im ursprünglicheren Zustand und bieten Ihnen die Gelegenheit, Ihre eigenen Vorstellungen und Ideen umzusetzen - gestalten Sie dieses Haus zu Ihrem ganz persönlichen Traumhaus.
Im Falle einer Teilung des Gesamtgrundstücks muss für das hintere Grundstück ein Geh-, Fahr- und Leitungsrecht gewährt werden. Alternativ besteht die Möglichkeit, das gesamte Grundstück mit 883 m² zu erwerben, wodurch zusätzlich 476 m² Fläche inklusive Garten, Pool und Nebengebäuden verfügbar wären. Der Gesamtpreis für das komplette Grundstück beträgt 749.000 EUR.
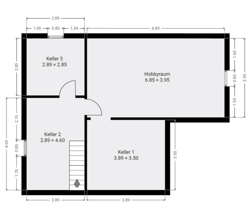
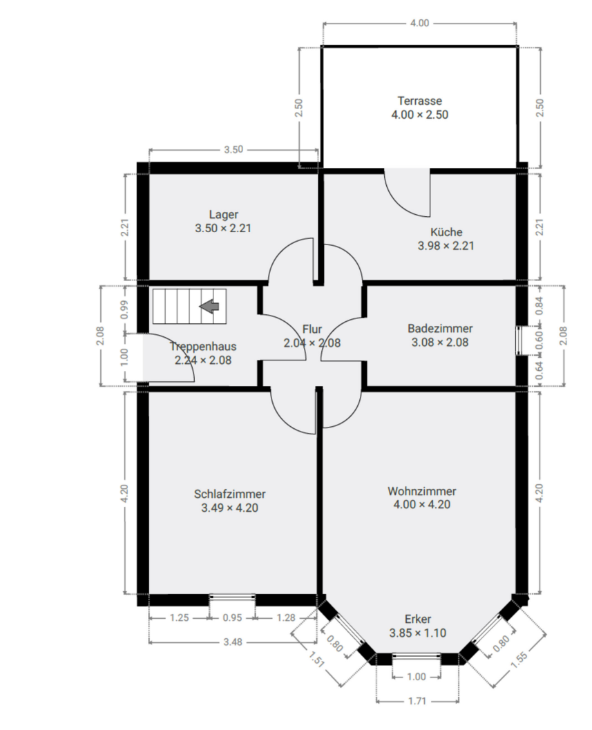
Grundriss im Überblick
Das Haus überzeugt durch eine klare und funktionale Raumaufteilung, die sich über alle drei Etagen (Erdgeschoss, Obergeschoss und Dachgeschoss) gleichermaßen erstreckt. Jede Etage bietet damit einen identischen Grundriss, was vielseitige Nutzungsmöglichkeiten schafft, ob als Mehrgenerationenhaus, zur Vermietung oder zur individuellen Eigennutzung.
Jede Wohnebene verfügt über:
- einen zentralen Flur,
- eine Küche (außer im OG),
- ein Badezimmer,
- eine Kammer sowie
- zwei großzügige Wohnräume, die sich flexibel als Wohn-, Schlaf- oder Arbeitszimmer gestalten lassen.
Im Erdgeschoss lädt eine gemütliche Terrasse mit direktem Zugang zum Garten zum Entspannen und Genießen ein. Hier können Sie den Blick ins Grüne genießen, Feste feiern oder einfach den Feierabend in ruhiger Atmosphäre ausklingen lassen.
Das Obergeschoss verfügt über einen Balkon in Westausrichtung, der zur Straßenseite hin gelegen ist. Dank der Sonnenlage ist dieser Bereich besonders in den Nachmittags- und Abendstunden ein schöner Platz, um die letzten Sonnenstrahlen des Tages zu genießen.
Das Badezimmer im Obergeschoss wurde zudem erweitert und umfasst nun den ehemaligen Küchenbereich. Dadurch entstand ein großzügiges, modernes Bad mit deutlich mehr Raum und Komfort. Ein Ort der Ruhe und Erholung, der der Etage einen zeitgemäßen Charakter verleiht.
Das Dachgeschoss bietet, wie die übrigen Ebenen, denselben Grundriss und kann flexibel genutzt werden, beispielsweise als eigenständige Wohneinheit, Arbeits- oder Gästebereich.
Überzeugen Sie sich selbst - vereinbaren Sie noch heute einen Besichtigungstermin!
Die in den Angeboten gemachten Aussagen sind Angaben der Verkäufer bzw. Behörden. Eine Haftung für die Richtigkeit kann deshalb nicht übernommen werden. Die Angebote von Baumert- Immobilien sind daher freibleibend und unverbindlich. Die Expose`s sind nur Vorinformationen ,als Rechtsgrundlage gilt allein der notariell beurkundete Kaufvertrag.
Das Haus überzeugt durch zahlreiche Modernisierungen, die in den vergangenen Jahrzehnten sorgfältig durchgeführt wurden. Dabei wurde stets darauf geachtet, den ursprünglichen Charakter des Hauses zu bewahren und zugleich modernen Wohnkomfort zu schaffen.
Modernisierungsmaßnahmen im Überblick:
Dach (1991): Das Dach wurde mit langlebigen Betondachsteinen erneuert.
Fenster (Anfang der 1990er Jahre): Sämtliche Fenster wurden durch isolierverglaste Kunststofffenster ersetzt. Diese bieten nicht nur eine verbesserte Energieeffizienz, sondern tragen auch zu einem angenehm ruhigen Wohnambiente bei.
Heizung (2025): Eine Gaszentralheizung sorgt für eine zuverlässige und wirtschaftliche Wärmeversorgung. Das System wurde im Jahr 2025 erneuert und entspricht somit einem modernen energetischen Standard.
Badezimmer im Obergeschoss: Das Badezimmer wurde vollständig saniert und präsentiert sich heute in einem zeitgemäßen, gepflegten Stil. Moderne Fliesen, eine Eckbadewanne, Dusche und eine ansprechende Raumaufteilung schaffen hier einen Ort der Entspannung.
Küche im Dachgeschoss: Die Küche wurde modernisiert und bietet ausreichend Platz zum Kochen und Genießen.
Elektrik: Im Obergeschoss wurde die Elektrik teilweise erneuert, sodass hier bereits eine zeitgemäße technische Infrastruktur vorhanden ist.
Gestaltungsspielraum und Potenzial
Während das Obergeschoss bereits ein hohes Maß an Wohnkomfort bietet, eröffnet das Erdgeschoss zahlreiche Möglichkeiten für individuelle Modernisierungen. Hier können Sie Ihre eigenen Ideen und Wohnträume verwirklichen - sei es durch eine neue Raumaufteilung, moderne Bodenbeläge oder den Einbau einer stilvollen Küche.
Die Kombination aus bereits durchgeführten Erneuerungen und Gestaltungspotenzial macht dieses Haus besonders attraktiv für Käufer, die Wert auf eine solide Basis legen und dennoch Raum für persönliche Gestaltung wünschen.
Das Objekt liegt in einer ruhigen Seitenstraße im begehrten Stadtteil Berlin-Biesdorf Nord. Hier genießen Sie eine gelungene Mischung aus naturnahem Wohnen und hervorragender städtischer Infrastruktur. Die Nachbarschaft ist geprägt von gepflegten Einfamilienhäusern, viel Grün und einer angenehm ruhigen Atmosphäre.
Gleichzeitig profitieren Sie von einer sehr guten Anbindung: Über die S-Bahn sowie mehrere Buslinien erreichen Sie die Berliner Innenstadt in kurzer Zeit. In unmittelbarer Nähe befinden sich das Unfallkrankenhaus Berlin, zahlreiche Einkaufsmöglichkeiten, Schulen, Kitas und Freizeiteinrichtungen.
Ein besonderes Highlight für Naturliebhaber ist die Nähe zu den "Gärten der Welt", einem weitläufigen Park mit Themengärten und Kulturangeboten. Damit bietet Biesdorf Nord eine hohe Lebensqualität - ideal für Familien, Paare und alle, die Ruhe, Natur und Großstadtnähe perfekt verbinden möchten.
Ansprechpartner
Mobil: +49 170 7961799
info@baumert-immobilien.de
Energieausweis (Verbrauchsausweis)
143 kWh / (m²*a) Energieverbrauchskennwert
143 kWh / (m²*a) Energieverbrauchskennwert
143 kWh / (m²*a) Energieverbrauchskennwert
Weitere Informationen
| Wesentlicher Energieträger | Gas |
| Energieausweis Ausstelldatum | 2025-10-07 |
| Energieausweis gültig bis | 06.10.2035 |
| Energieausweis Jahrgang | ab dem 1.5.2014 |
| Energieausweis Werteklasse | E |
| Energieausweis Baujahr | 1932 |
| Energieausweis Gebäudeart | Wohngebäude |
| Befeuerung | Gas |
Ich bin damit einverstanden, dass mir Karten von Google angezeigt werden. Es gelten die Datenschutzbedingungen von Google (https://policies.google.com/privacy).
Ich bin einverstanden