Einfamilienhaus mit grossem Garten und viel Potenzial am Leipziger Flughafen
Objektart
Adresse
Objektdaten
Informationen
Ausstattung
Details
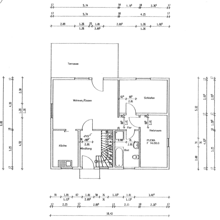
Dieses freistehende Einfamilienhaus befindet sich in ruhiger Wohnlage von Gerbisdorf, einem Ortsteil der Stadt Schkeuditz. Die Immobilie wurde im Jahr 1997 errichtet und steht auf einem großzügigen Grundstück von rund 974 m², das viel Platz für Garten, Freizeit und individuelle Gestaltung bietet. Die Wohnfläche beträgt etwa 100 m² und verteilt sich auf Erdgeschoss und Dachgeschoss.
Das Haus überzeugt durch eine praktische Raumaufteilung mit insgesamt ca. 4,5 Zimmern. Besonders angenehm ist, dass sich Wohnen und Schlafen im Erdgeschoss realisieren lässt. Dadurch eignet sich die Immobilie sowohl für Familien als auch für Paare oder Menschen, die Wert auf eine barrierearme Wohnlösung legen.
Der helle Wohn- und Essbereich bildet das Herzstück des Hauses und bietet direkten Zugang zum Wintergarten, der zusätzlichen Wohnkomfort schafft und einen schönen Blick in den Garten ermöglicht. Hier lassen sich entspannte Stunden mit Familie und Freunden genießen - unabhängig von der Jahreszeit.
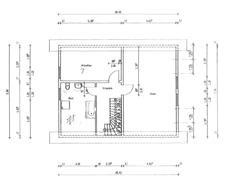
Neben dem Wohnbereich befinden sich im Erdgeschoss außerdem die Küche, ein Schlafzimmer sowie ein Badezimmer. Das Dachgeschoss bietet weitere Räume, die sich flexibel als Arbeitszimmer, Gästezimmer oder Kinderzimmer nutzen lassen. Eine kleine Galerie sorgt zusätzlich für ein offenes Raumgefühl.
Das große Grundstück bietet vielfältige Möglichkeiten - vom großzügigen Garten über Spielbereiche für Kinder bis hin zu individuellen Gestaltungsideen für Terrasse oder Freizeitflächen.
Zum Objekt gehören außerdem eine Garage sowie ein Außenstellplatz, sodass ausreichend Parkmöglichkeiten vorhanden sind.
Die Immobilie befindet sich insgesamt in einem soliden Zustand, jedoch sind einige Renovierungs- bzw. Modernisierungsarbeiten erforderlich. Dies bietet neuen Eigentümern die Möglichkeit, das Haus nach eigenen Vorstellungen zu gestalten und langfristig ein sehr schönes Zuhause in ruhiger Lage zu schaffen.
Überzeugen Sie sich selbst - vereinbaren Sie noch heute einen Besichtigungstermin!
Die in den Angeboten gemachten Aussagen sind Angaben der Verkäufer bzw. Behörden. Eine Haftung für die Richtigkeit kann deshalb nicht übernommen werden. Die Angebote von Baumert- Immobilien sind daher freibleibend und unverbindlich. Die Expose`s sind nur Vorinformationen ,als Rechtsgrundlage gilt allein der notariell beurkundete Kaufvertrag.
Die Immobilie verfügt über ein Badezimmer mit Dusche, Badewanne und einem Fenster. Eine Einbauküche ist bereits vorhanden sowie Rollläden an den Fenstern. Die Bodenbeläge bestehen aus Parkett und Fliesen. Zusätzlich gibt es eine Gästetoilette und einen Wintergarten. Die Qualität der Ausstattung wird als einfach beschrieben.
Die Immobilie befindet sich in Gerbisdorf, einem ruhigen Ortsteil der Stadt Schkeuditz, nordwestlich von Leipzig. Die Lage verbindet ländliche Ruhe mit einer sehr guten Anbindung an die wirtschaftsstarke Metropolregion Leipzig/Halle.
Besonders attraktiv ist die Nähe zur Leipziger Innenstadt, die in etwa 20-25 Minuten mit dem Auto erreichbar ist. Dadurch eignet sich der Standort ideal für Berufspendler, die die Vorteile des ruhigen Wohnens im Grünen mit der Nähe zur Großstadt verbinden möchten.
Die Verkehrsanbindung ist hervorragend. In wenigen Minuten erreicht man die Autobahn A14, über die sowohl Leipzig als auch Halle schnell erreichbar sind. Auch die Autobahn A9 ist nicht weit entfernt und bietet eine direkte Nord-Süd-Verbindung. Der Flughafen Leipzig/Halle liegt ebenfalls nur wenige Fahrminuten entfernt und sorgt für zusätzliche infrastrukturelle Stärke der Region.
Die Stadt Schkeuditz bietet eine sehr gute Infrastruktur mit Einkaufsmöglichkeiten, Schulen, Kindergärten, Ärzten und gastronomischen Angeboten. Auch öffentliche Verkehrsmittel sind gut erreichbar und ermöglichen eine unkomplizierte Verbindung in Richtung Leipzig.
Ein besonderes Highlight der Umgebung ist der nur etwa 7 km entfernte Schladitzer See, der zu den beliebtesten Naherholungsgebieten der Region zählt. Hier finden sich zahlreiche Freizeitmöglichkeiten wie Baden, Segeln, Radfahren oder Spaziergänge entlang der Uferlandschaft.
Die Lage bietet damit eine ideale Kombination aus ruhigem Wohnen im Grünen, sehr guter Verkehrsanbindung und der Nähe zur pulsierenden Leipziger Innenstadt.
Ansprechpartner
Mobil: +49 170 7961799
info@baumert-immobilien.de
Ich bin damit einverstanden, dass mir Karten von Google angezeigt werden. Es gelten die Datenschutzbedingungen von Google (https://policies.google.com/privacy).
Ich bin einverstanden